Visita virtual
¡Valoración Guardada!
Sólo lo verás tú
¡Comentario guardado!
Añade tu valoración y/o un comentario para este anuncio. Sólo lo verás tu
3.200.000 € Avísame si baja
ha bajado 150.000 €

Casa en Marratxinet Marratxí

  • 584 m2
  • 6 hab.
  • 5 baños
  • 5.479 €/m2

¿Buscas algo especial?

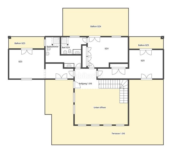
Este lujoso chalét en Marratxi ofrece mucho espacio para una familia numerosa en un total de 584 m² de superficie habitable. La casa bien cuidada y mantenida se extiende sobre tres plantas y tiene un total de 8 habitaciones, incluyendo 6 dormitorios y 5 baños. El suelo de cristal de la zona de entrada en la planta baja es espectacular y un verdadero punto de atracción. La planta baja ofrece un gran hall con una preciosa escalera curvada, cocina, comedor, 3 dormitorios (uno de los cuales es el dormitorio principal), 3 baños y un amplio salón. En la 1ª planta hay otros 3 dormitorios y 2 baños, así como varios balcones y una gran terraza. El mobiliario de alta calidad y el suelo de baldosas crean un ambiente de lujo. En el exterior hay una plaza de aparcamiento al aire libre, así como un aparcamiento subterráneo, trastero, un bar, una gran sala de cine y la zona de spa completamente reformada con piscina cubierta climatizada, sauna, 2 aseos y vestuario. Un amplio garaje con taller independiente y sla de maquinas ofrece espacio adicional para guardar vehículos, etc. La casa no tiene barreras arquitectónicasy dispone de un aseo para invitados. La zona exterior está diseñada con mucho gusto, con una fuente, iluminación, una amplia zona verde y un gran número de olivos. y arboles frutales. La piscina exterior con jacuzzi integrado es fantástica e invita a refrescarse en los calurosos meses de verano de Mallorca. Este chalét convencerá a todos los amantes del lujo y el confort.

EL PROPIETARIO ESTARÍA DISPUESTO A ACEPTAR UNA PARTE DEL PRECIO POR MEDIO DE UNA PERMUTA

última modificación

Distribución

  • 6 habitaciones
  • Superficie 584 m2
  • Terreno 11789 m2
  • 5 Baños

Características generales

  • Certificado energético :
    Consumo:
    G
    999 kW h m2 / año
    Emisiones:
    G
    999 kg CO2 m2 / año
Anuncio: 54913000000311

Ubicación

Marratxinet

Navega por el mapa haciendo clic sobre él
3.200.000 € Precio del anuncio
3.445 €/m2€/m2 comarca
5.479 €/m2€/m2 del anuncio
Ver evolución €/m2 en Marratxí
¿Te avisamos cuando tengamos un anuncio como este? Crea tu alerta y nosotros te avisaremos por correo electrónico cuando hayan anuncios nuevos o que sean modificados
 

Contactar Falc Real Estate

Referencia del anuncio habitaclia/FALC-MP-51320:

Verás el teléfono después de enviar tu contacto al anunciante para que te pueda atender.
Verás el teléfono después de contactar
Enviando...