Favorito y comentario
Casa adosada en urbanización haza del algarrobo 27 en Mijas
Características principales
- 154 m2
- 3 hab.
- 2 baños
- 2.305 €/m2
Información detallada
Espaciosa casa adosada familiar en una urbanización muy solicitada entre Mijas Pueblo y Fuengirola
Casa adosada orientada al sureste, ubicada en una popular urbanización cerrada entre el encantador y pintoresco pueblo blanco de Mijas y la vibrante localidad costera de Fuengirola. Disfruta de vistas a los cuidados jardines comunitarios en un entorno seguro y familiar.
Resumen
* 3 dormitorios en total (2 dobles y un amplio dormitorio principal con gran terraza privada en la planta superior)
* 2 baños (uno en suite)
* Comunidad cerrada y segura
* Ubicación junto a todos los servicios
Características interiores
* Recibidor con acceso a un amplio salón-comedor de planta abierta
* Chimenea funcional
* Patio privado y cerrado, ideal para disfrutar al aire libre
* Cocina moderna totalmente equipada con espacio para lavadora y amplio almacenamiento
Extras
* Aire acondicionado frío/calor en el salón y dormitorio principal
* Suelos de mármol con incrustaciones
* Persianas de seguridad
* Armarios empotrados en todos los dormitorios
Zonas comunes
* Gran piscina tipo laguna y piscina infantil
* Jardines comunitarios bien mantenidos
* Zona de juegos infantil cerrada
* Se vende sin amueblar
* Aparcamiento en la calle
Ubicada a poca distancia a pie de una nueva zona comercial con restaurantes y bien comunicada con el transporte público hacia Fuengirola y Mijas Pueblo.
Se recomienda visitarla.
última modificación
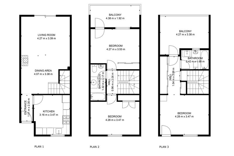
Distribución
- 3 habitaciones
- Superficie 154 m2
- Terreno 84 m2
- 2 Baños
- Cocina tipo office
Características generales
- Chimenea
- Sin plaza parking
- Amueblado
- Aire acondicionado
- Año construcción 2001
Equipamiento comunitario
- Piscina comunitaria
Galería
Ubicación
Campo de Mijas Urbanización Haza del Algarrobo 27