¡Valoración Guardada!
Sólo lo verás tú
¡Comentario guardado!
Añade tu valoración y/o un comentario para este anuncio. Sólo lo verás tu
2.425.000 € Avísame si baja

Chalet más que una casa: una obra maestra inigualable en marbella en Manilva

  • 577 m2
  • 5 hab.
  • 4 baños
  • 4.203 €/m2

Más que una Casa: Una Obra Maestra Inigualable en Marbella

¿Cómo describir con palabras una propiedad que supera todas las expectativas?

Esta villa excepcional, construida con los más altos estándares escandinavos, es un verdadero oasis de lujo y confort.

Un Diseño Impecable:

Arquitectura de Vanguardia: Un diseño exterior elegante y moderno que combina a la perfección con el entorno natural.
Construcción de Alta Calidad: Materiales y acabados de primera línea, desde el drenaje hasta el aislamiento, garantizan una durabilidad y eficiencia excepcionales.
Espacios Amplios y Luminosos: Cada rincón de la villa está cuidadosamente diseñado para maximizar la luz natural y crear un ambiente cálido y acogedor.
Comodidades de Alto Nivel: Un amplio garaje para 5-6 autos, un sótano que se puede convertir en un apartamento independiente o una bodega con su propia entrada, y muchas otras comodidades que harán su vida más placentera.
Vistas Panorámicas Impresionantes:

Un Mirador Privilegiado: Desde la terraza de la villa, podrá disfrutar de vistas panorámicas impresionantes que abarcan desde Cabopino hasta la costa norte de África y el peñón de Gibraltar.
Un Espectáculo Visual Incomparable: Las imágenes no pueden hacerle justicia a la belleza natural que rodea esta propiedad.
Una Experiencia Única:

Esta villa no es solo una casa, es una obra maestra que debe ser apreciada en persona.

Contacte hoy mismo para programar una visita y descubrir por qué esta propiedad es única.

última modificación

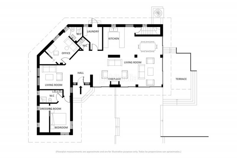
Distribución

  • 5 habitaciones
  • Superficie 577 m2
  • Terreno 1409 m2
  • 4 Baños
  • Cocina tipo office: No

Características generales

  • Piscina propia
  • Sin plaza parking
  • Amueblado
  • Aire acondicionado
  • Año construcción 2017
  • Certificado energético :
    Consumo:
    B
    3 kW h m2 / año
    Emisiones:
    C
    4 kg CO2 m2 / año
Anuncio: 22145000002162

Ubicación

Alcorrín Urbanización Princesa Kristina

Navega por el mapa haciendo clic sobre él
2.425.000 € Precio del anuncio
3.601 €/m2€/m2 población
4.203 €/m2€/m2 del anuncio
Ver evolución €/m2 en Manilva
¿Te avisamos cuando tengamos un anuncio como este? Crea tu alerta y nosotros te avisaremos por correo electrónico cuando hayan anuncios nuevos o que sean modificados
 

Contactar NEWBERY REAL ESTATE

Referencia del anuncio habitaclia/NR4503268E:

Verás el teléfono después de enviar tu contacto al anunciante para que te pueda atender.
Verás el teléfono después de contactar
Enviando...