¡Valoración Guardada!
Sólo lo verás tú
¡Comentario guardado!
Añade tu valoración y/o un comentario para este anuncio. Sólo lo verás tu
570.000 € Avísame si baja

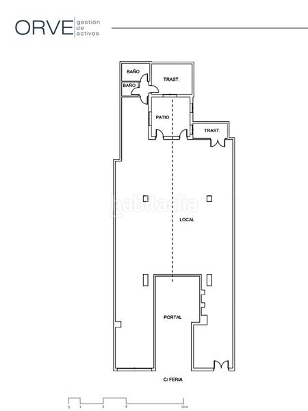
Local comercial local en venta en calle Feria en Feria Sevilla

  • 230 m2
  • 2 baños
  • 2.478 €/m2

Local en venta en Calle Feria

¡Gran oportunidad para emprendedores!
Este local en venta completamente diáfano ofrece un espacio versátil de 230 m² construidos y 219 m² útiles, ideal para desarrollar tu negocio en una de las zonas más concurridas de la calle Feria.
Cuneta con acceso directo a un amplio patio interior que potenciará cualquier actividad y te facilita el desarrollo de 3 apartamentos turisticos en una de las zonas más demandadas de la ciudad.
Cuenta con dos baños, aire acondicionado y un almacén, lo que lo convierte en una opción práctica y cómoda.
Su ubicación, cerca de la Alameda de Hércules, asegura un flujo constante de clientes y visibilidad.
No dejes pasar esta oportunidad de inversión.
Consulta sin compromiso y descubre cómo este local puede ser el nuevo hogar de tu negocio. ¡Hazlo tuyo hoy mismo!

última modificación

Distribución

  • Superficie 230 m2

Características generales

  • Aire acondicionado
  • Certificado energético :
    Consumo:
    G
    999 kW h m2 / año
    Emisiones:
    G
    999 kg CO2 m2 / año
Anuncio: 43692000000062

Ubicación

Feria

Navega por el mapa haciendo clic sobre él
¿Te avisamos cuando tengamos un anuncio como este? Crea tu alerta y nosotros te avisaremos por correo electrónico cuando hayan anuncios nuevos o que sean modificados
 

Contactar ORVE GESTION DE ACTIVOS SL

Referencia del anuncio habitaclia/FERIA:

Verás el teléfono después de enviar tu contacto al anunciante para que te pueda atender.
Verás el teléfono después de contactar
Enviando...