¡Valoración Guardada!
Sólo lo verás tú
¡Comentario guardado!
Añade tu valoración y/o un comentario para este anuncio. Sólo lo verás tu
1.495.000 € Avísame si baja

Masía en Benissa pueblo Benissa

  • 193 m2
  • 3 hab.
  • 3 baños
  • 7.746 €/m2

Proyecto de Villa Moderna en Benissa Costa - A 5 minutos de la playa de La Fustera

Déjate seducir por este elegante y estiloso proyecto de chalet con piscina privada, situado en una moderna zona residencial a tiro de piedra de la idílica playa de La Fustera.

Este proyecto combina diseño contemporáneo, acabados de alta calidad y una excelente ubicación, lo que la convierte en una opción ideal para quienes buscan comodidad y lujo en la Costa Blanca. La villa ofrece una elegante distribución en dos plantas.

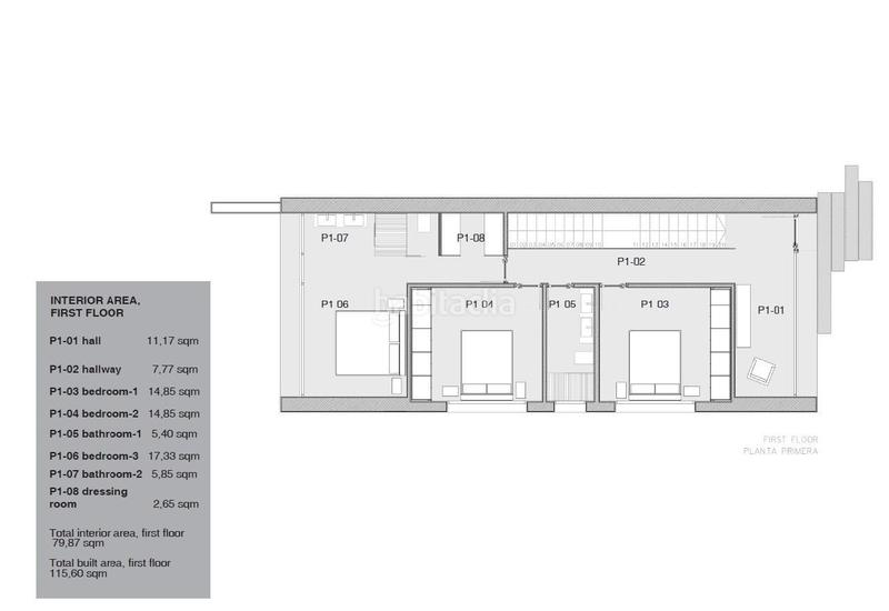
En la planta baja encontrarás un amplio y luminoso salón-comedor que, gracias a grandes ventanales correderos, da acceso directo a la terraza y la piscina. La moderna cocina abierta está totalmente integrada en el salón, lo que hace que cocinar y estar juntos sean perfectamente compatibles. Una puerta corredera de cristal conduce a un acogedor patio de 38 m², un lugar tranquilo para relajarse o disfrutar del aire libre. También hay un elegante aseo de invitados, que añade comodidad y funcionalidad a esta planta.

Arriba está el dormitorio principal con su propio cuarto de baño en suite, un lujoso refugio para desconectar por completo. Junto al dormitorio principal hay dos amplios dormitorios dobles que comparten un moderno cuarto de baño, ideal para invitados o familiares. Los grandes ventanales de todos los dormitorios proporcionan mucha luz natural y una conexión con la naturaleza circundante.

El proyecto de la villa se ha diseñado prestando atención a los detalles y utilizando materiales de alta calidad. Todas las habitaciones están equipadas con un eficaz sistema de aire acondicionado con control independiente de la temperatura, que garantiza un clima interior óptimo. Las ventanas de doble acristalamiento con rotura de puente térmico y los suelos de porcelana -disponibles en gris cemento o beige- contribuyen al carácter moderno y de alta calidad de la propiedad.

La ubicación de esta villa es perfecta. La parcela llana está en una moderna zona residencial con excelentes infraestructuras y parcelas más grandes que la media, lo que ofrece más privacidad y espacio. A sólo 1,9 km de la playa de arena La Fustera, disfrutarás de una combinación única de tranquilidad y proximidad a servicios, restaurantes y ocio. Esta villa es una oportunidad única de invertir en una moderna casa de ensueño perfectamente adaptada a la vida mediterránea. Con sus líneas limpias, su cuidado diseño y su hermosa ubicación, esta propiedad ofrece todo lo que necesitas para una vida lujosa y relajada en la Costa Blanca.

¡Ponte en contacto con nosotros hoy mismo para obtener más información o para descubrir las posibilidades de este proyecto especial!

última modificación

Distribución

  • 3 habitaciones
  • Superficie 193 m2
  • Terreno 1350 m2
  • 3 Baños

Características generales

  • Piscina propia
  • Sin plaza parking
  • Sin aire acondicionado
  • Certificado energético :
    Consumo:
    G
    999 kW h m2 / año
    Emisiones:
    G
    999 kg CO2 m2 / año
Anuncio: 28548000002580

Ubicación

Benissa Pueblo

Navega por el mapa haciendo clic sobre él
1.495.000 € Precio del anuncio
2.726 €/m2€/m2 población
7.746 €/m2€/m2 del anuncio
¿Cuanto te gustaría pagar?
Ver evolución €/m2 en Benissa
¿Te avisamos cuando tengamos un anuncio como este? Crea tu alerta y nosotros te avisaremos por correo electrónico cuando hayan anuncios nuevos o que sean modificados
 

Contactar ARZUAGA INMOBILIAIRA

Referencia del anuncio habitaclia/AR618224:

Verás el teléfono después de enviar tu contacto al anunciante para que te pueda atender.
Verás el teléfono después de contactar
Enviando...