Favorito y comentario
Masía en L´Albir Alfàs del Pi (l´)
Características principales
- 494 m2
- 4 hab.
- 4 baños
- 3.634 €/m2
Información detallada
Villa moderna con características innovadoras, tecnologías de vanguardia y lujo. La villa de más de 380m2 construidos, está diseñada según los estándares del lujo y la estética contemporánea, con un espacio de vida abierto, líneas elegantes y una elección limitada de colores basada en tonos y materiales naturales, neutros y relajantes, con el objetivo de estimular todos los sentidos, crear seguridad, bienestar emocional y conexión con la naturaleza a través de espacios y aberturas.
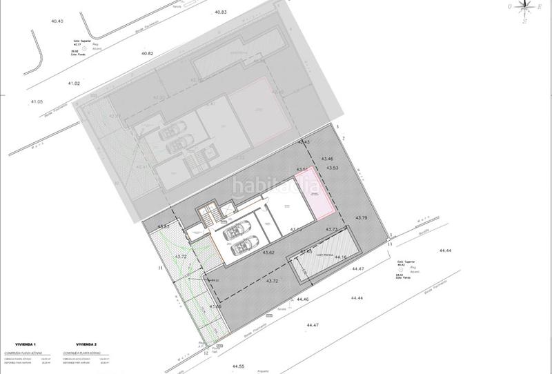
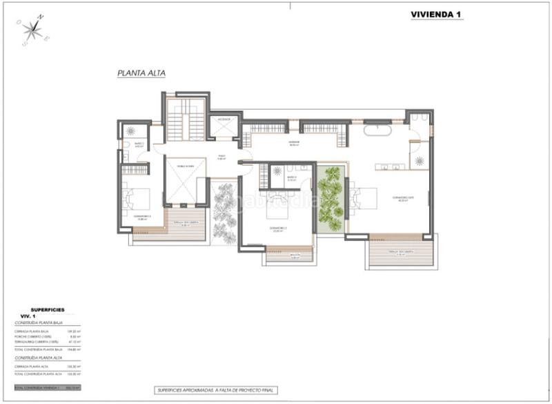
La villa se distribuye en 3 niveles, tiene 4 dormitorios y 4 baños, en el sótano hay un garaje para 2 coches, una sala técnica, un gran trastero, un ascensor y una escalera. En la planta baja hay un hall de entrada con guardarropa con un altillo alto, una escalera, un ascensor, 2 dormitorios en suite, una cocina abierta y sala de estar y un patio cerrado. En el mismo nivel, fuera hay una gran terraza, una gran piscina y una cocina exterior cubierta con barbacoa y una cochera para 2 coches y un jardín con arbustos y árboles mediterráneos. En la primera planta hay 2 dormitorios en suite con baño y balcón, una escalera, un ascensor, un altillo, un patio cerrado y una enorme suite principal con vestidor y terraza. La villa rebosa lujo y tranquilidad.
La finalización está prevista para finales de 2025 (sujeto a cambios).
última modificación
Distribución
- 4 habitaciones
- Superficie 494 m2
- Terreno 683 m2
- 4 Baños
Características generales
- Piscina propia
- Sin plaza parking
- Sin aire acondicionado
Galería
Ubicación
L´Albir
