Favorito y comentario
Terreno residencial en Benissa pueblo Benissa
Características principales
- 1.423 m2
- 524 €/m2
Información detallada
Parcela única con vistas al mar en Racó del Galeno
Esta espaciosa parcela de 1.423 m² se encuentra en la exclusiva y moderna urbanización Racó del Galeno. Ofrece impresionantes vistas panorámicas sobre el mar Mediterráneo, desde el Cap d'Or en Moraira hasta más allá del emblemático Peñón de Ifach en Calpe. Gracias a su orientación sureste, aquí disfrutará de una luz óptima y de impresionantes amaneceres.
La parcela alberga actualmente una villa tradicional con una superficie construida de 117 m². Existen tres interesantes posibilidades de desarrollo para esta propiedad:
1. Renovación - Puede renovar la propiedad existente y disfrutar rápidamente de su propio hogar en una ubicación privilegiada.
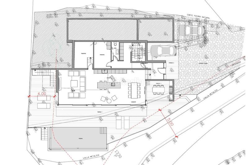
2. Renovación integral y ampliación - Ya está disponible un proyecto básico y de ejecución que le permite transformar completamente la propiedad en una moderna villa de estilo ibicenco con encanto mediterráneo. Los renders y planos ilustran esta opción.
3. Nueva construcción - Puede optar por demoler la casa actual y construir una villa completamente nueva y lujosa, totalmente de acuerdo con sus propios deseos y estilo.
La ubicación es ideal: a sólo 5 minutos en coche de la pintoresca costa de Benissa y a 10 minutos del animado centro de Calpe, con sus amplios servicios, playas y restaurantes, aquí lo tiene todo a su alcance.
Más información o una visita con cita previa.
última modificación
Distribución
- Superficie 1423 m2
Galería
Ubicación
Benissa Pueblo
