Favorito y comentario
Terreno residencial en Can Massuet del Far Dosrius
Características principales
- 402 m2
- 105 €/m2
Información detallada
¡Aprovecha esta oportunidad única! Se vende un terreno urbano de 402 m², situado a solo 3 minutos en coche del centro de Dosrius. Su ubicación es perfecta para construir tu hogar en un entorno natural privilegiado, cercano al Parque Natural del Montnegre i el Corredor, donde podrás disfrutar de tranquilidad y belleza paisajística.
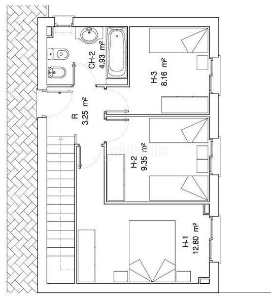
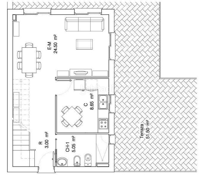
La urbanización cuenta con la aprobación del ayuntamiento, lo que garantiza el acceso a servicios básicos y una inversión segura. El terreno presenta una ligera pendiente y ya dispone de un preproyecto elaborado para que puedas visualizar tu futura vivienda.
Además, la urbanización ofrece una amplia gama de instalaciones: zona deportiva con pistas de pádel, tenis, calistenia, campo de fútbol sala, y pistas de baloncesto; centro médico, farmacia, tiendas y restaurantes. Estarás cerca de colegios, institutos, la piscina municipal, supermercados y otros servicios esenciales.
Dosrius es el lugar ideal para desconectar tras la jornada laboral o para quienes teletrabajan, ofreciendo un estilo de vida en comunidad en un entorno natural y tranquilo. ¡No dejes pasar esta oportunidad de construir tu futuro en un entorno privilegiado!
última modificación
Distribución
- Superficie 402 m2
Galería
Ubicación
Can Massuet del Far Avinguda Dosrius
